Přijďte se seznámit s návrhem "školní ulice Poláčkova" a dejte nám k němu zpětnou vazbu


Přijďte se seznámit s návrhem "školní ulice Poláčkova" a dejte k němu zpětnou vazbu

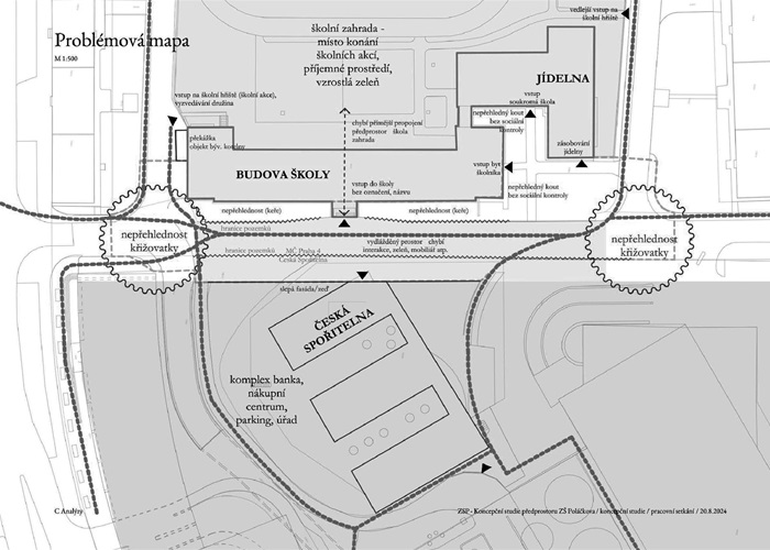
Na jaře letošního roku zadala městská část studii, jejímž úkolem je navrhnout, jak zkultivovat a oživit veřejné prostranství před ZŠ Poláčkova, a současně doporučit opatření ke zvýšení dopravní bezpečnosti u křižovatek Poláčkova - Rabasova a Poláčkova - Tilschové. Nyní má realizační tým zpracovány první návrhy a uvítá k nim zpětnou vazbu.
  • Kdy: ve středu 2. 10. 2024 v 18:00 hod.

  • Kde: v jídelně ZŠ Poláčkova

„Na samém začátku vstoupili do projektu žáci, kteří prostřednictvím pracovních listů vyjádřili, jak by měl podle jejich představ vypadat a fungovat předprostor školy. Četnými podněty a  provozními požadavky přispělo také vedení školy. V této fázi projektu by s vámi architekti své návrhy rádi zkonzultovali. Přijďte prosím na veřejné setkání, zapojte se do diskuse s architekty a pomozte nám vytvořit řešení co nejlépe vyhovující všem skupinám uživatelů,“ říká místostarosta pro územní rozvoj a výstavbu Patrik Opa (ODS).

Přijďte se seznámit s návrhem "školní ulice Poláčkova" a dejte k němu zpětnou vazbu





Zveřejněno: 23.09.2024 – Vít Drbal
Vytisknout